小金井市 前原町4丁目15-6
新築分譲〈全2棟〉
前面4m公道 × 駐車2台(※車種による)|A:3LDK / B:4LDK+パントリー
落ち着いた住宅街
生活動線◎
収納充実
現地・近隣案内可能
生活動線◎
収納充実
現地・近隣案内可能
図面だけでは分からない「光の入り方」や「街の空気感」は、現地でこそ判断できます。
ご希望があれば、同仕様完成物件のご案内も可能です。
物件概要
(抜粋)
ポイント
- 前面4m公道に面した全2棟(A/B)
- 駐車2台プラン(※車種による)
- A:バランス重視の3LDK/B:家族数に対応する4LDK+パントリー
- 生活のしやすさを意識した収納・動線設計
基本情報
| 所在地 | 東京都小金井市前原町4丁目15-6 |
|---|---|
| 販売棟数 | 2棟 |
| 接道 | 前面 約4.0m(位置指定道路) |
| 駐車 | 各棟2台(※車種による) |
| 取引態様 | 仲介 |
※接道・駐車条件は現地で必ずご確認ください。
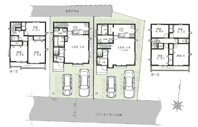
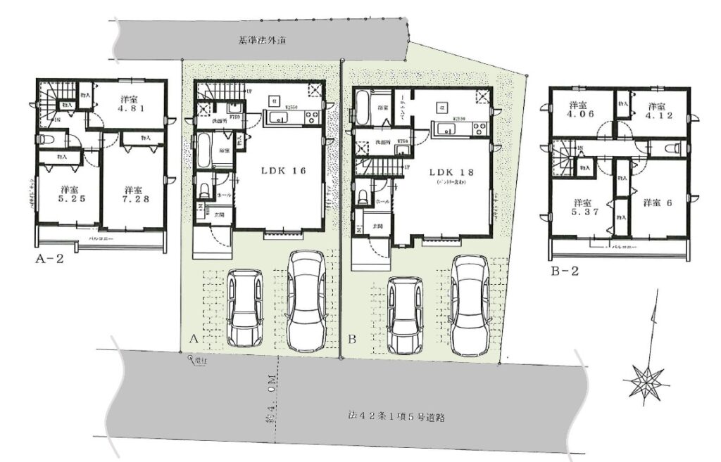
A/B 棟別データ
| 棟 | 価格 | 敷地面積 | 延床面積 | 構造 |
|---|---|---|---|---|
| A号棟 | 6,390万円 | 100.27㎡ | 79.64㎡ | 木造2階建 |
| B号棟 | 6,790万円 | 110.31㎡ | 87.35㎡ | 木造2階建 |
※数値は資料に基づく記載です。確定情報は販売図面・重要事項説明でご確認ください。
間取り・区画
画像を差し替えてご利用ください
※掲載の向き・道路幅等は図面を優先します。
※家具・車はイメージの場合があります。
現地写真
写真を入れると反響が伸びます
設備・構造(訴求ポイント)
※採用仕様に合わせて調整してください
ベタ基礎
底面全体で荷重を支える基礎。不同沈下に強く、湿気・シロアリ対策にも有効。
木造軸組工法
柱・梁で構成する伝統的工法。耐震性と間取りの自由度を両立し、将来の変更にも柔軟。
耐力パネル/金物(例)
見えない部分の補強こそ安心の根拠。外力を分散し、住まい全体の剛性を高めます。
※実際の採用設備・仕様は必ず現地・資料でご確認ください。
周辺環境・アクセス
地図リンクを入れると問合せが増えます
現地の目印
「Honda Cars 東京中央 小金井店」付近(周辺)
- 住所:小金井市前原町4丁目15-6
- 前面:位置指定道路(約4m)
※地図URLを差し替えるだけで完成度が一気に上がります。
周辺環境(例)
実際の施設名・徒歩分数に合わせて編集してください。
-
ショッピングセンター西松屋小金井貫井店:徒歩14分(1093m)
-
スーパーコープ小金井ぬくい坂下店:徒歩15分(1143m)
-
スーパーいなげや府中浅間町店:徒歩17分(1324m)
-
コンビニファミリーマート小金井前原店:徒歩5分(369m)
-
コンビニセブンイレブン小金井前原町5丁目店:徒歩8分(583m)
-
ドラッグストアウェルパーク小金井前原町店:徒歩4分(260m)
-
中学校小金井市立南中学校:徒歩12分(910m)
-
小学校小金井市立前原小学校:徒歩11分(823m)
-
幼稚園・保育園まなびの森保育園府中北プチ・クレイシュ:徒歩15分(1181m)
-
幼稚園・保育園朋愛幼稚園:徒歩10分(779m)
-
病院医療法人財団美生会小金井病院:徒歩7分(534m)
-
郵便局小金井前原五郵便局:徒歩7分(542m)
-
公園野川緑地公園:徒歩9分(660m)





