新築戸建 🏡弊社管理物件♪の為仲介手数料無料【新築】小平市小川東町2602番地|ハートフルタウン(全1棟)✨
up

26.01.23新築戸建
  • 価格
    5690万円
  • 種別
    新築戸建
  • 間取
    4LDK
  • 所在地
    東京都小平市小川東町2602-23  
  • 交通
    西武拝島線 萩山駅 徒歩8分
    西武新宿線 西武新宿駅 徒歩15分

物件詳細

築年月 新築/中古
面積 94.81m² 計測方式
バルコニー 向き
建物階数 部屋階数
建物構造
間取内容
駐車場 取引態様
引渡/入居時期 現況
地目 宅地 用途地域 第一種低層住居専用
都市計画 市街化区域 地勢 平坦
土地面積 120.42m² 土地面積計測方式 公簿
建ぺい率 40% 容積率 80%
周辺環境 第十四 小平第一
設備・条件
物件番号

ローンシュミレーション

お借入金額 (万円)
ボーナス月返済 (%)
お借入金利 (%)
お借入期間 (年)
毎月のご返済額
147,704 円
ボーナス月加算額
0 円
ボーナス月返済額
147,704 円
年間返済総額
1,772,448 円
ご返済総額
62,035,680 円
Loading...
※物件掲載内容と現況に相違がある場合は現況を優先と致します。

新築分譲住宅 / 全1棟

ハートフルタウン 小平市小川東町2602番

西武拝島線「萩山」駅 徒歩8分 / 西武新宿線「小平」駅 徒歩15分

物件ハイライト

  • 長期優良住宅・太陽光パネル搭載(チラシ記載)
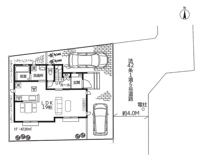
  • LDK19帖のゆとりある1階プラン
  • 4LDK(2階:洋室 7.0帖 / 5.25帖 / 5.25帖 / 4.5帖)
  • 前面道路:約4.0m(チラシ記載)

販売価格(税込)

5,690万円

土地 / 建物

120.42㎡(約36.42坪)
94.81㎡(約28.68坪)

地図


※ページ表示速度のため、Web用に適正サイズへ圧縮推奨

物件概要

所在地 東京都小平市小川東町2602番(チラシ記載)
交通 西武拝島線「萩山」徒歩8分/西武新宿線「小平」徒歩15分
総棟数 / 号棟 全1棟 / A号棟
価格 5,690万円(税込)
土地面積 120.42㎡(約36.42坪)
建物面積 94.81㎡(約28.68坪)
前面道路 約4.0m(チラシ記載)
間取り 4LDK(LDK19帖)
特徴 長期優良住宅/太陽光パネル搭載(チラシ記載)

周辺環境(Life Information)

小平第十四小学校 約560m
小平第一中学校 約1,420m
なかまち保育園 約330m
暁星幼稚園 約830m
スーパーマーケット 約520m

地図

間取りポイント

  • 1階:LDK19帖+水回り集約で家事動線が取りやすい構成
  • 2階:居室4部屋(7.0帖/5.25帖/5.25帖/4.5帖)+バルコニー
  • 駐車は敷地内に2台分描画あり(※現地でサイズ確認推奨)

※図面上の表記をもとに記載。家具配置や採光は現地でご確認ください。

備考

  • 掲載の距離・徒歩分数は目安です。
  • 図面と現況が異なる場合は現況を優先します。
  • 金融機関やローン条件のご相談も承ります。

 

お問い合わせはこちらからお寄せください

お電話からのご予約・お問い合わせ
TEL:0120-595-598
営業時間10:00~18:00
定休日:水曜日 第1,3火曜日
WEBからのご予約・お問い合わせ