~物件所在地:小平市小川西町5-32-18~
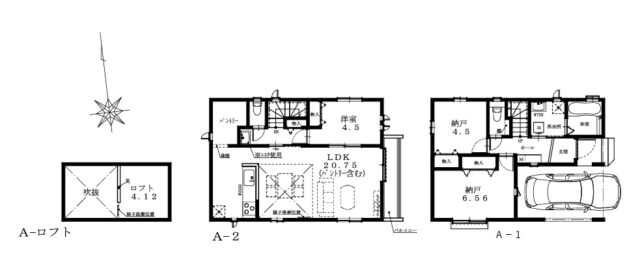
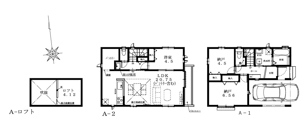
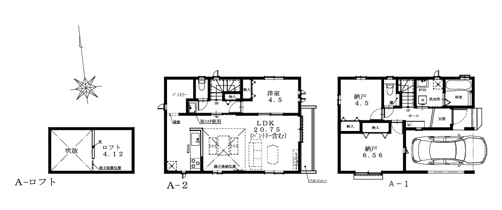
A号棟 敷地面積:76.36㎡(約23.09坪)
建物面積:85.90㎡(約25.98坪)
物件価格:4,690万円
B号棟 敷地面積:76.41㎡(約23.11坪)
建物面積:69.92㎡(約21.15坪)
物件価格:4,190万円
■全2棟の新築分譲!
■東道路の整形地
■西武拝島線・西武国分寺線「小川」駅 徒歩7分♪
■ロフト付きで収納豊富な1LDK+2S~3LDK♪
■全居室クローゼット有♪
■ZEH水準の省エネ住宅
~安心の建物~
●安心の住宅性能表示(設計・建設)Wで取得!
●建物は地震に強い耐震等級3取得!
同施工会社のモデルハウスもご見学可能です♪
お気軽にお問い合わせ下さい♪







