【新規分譲開始】東久留米市前沢2丁目 限定1棟
🌞太陽光パネル+床暖房🌞
陽だまりのような暖かさを感じる床暖房と、太陽光パネルによるエコな暮らし。快適さと安心を両立した住まいです。
◆所在地:東久留米市前沢2丁目4-1(地番:1128番50)◆交通:西武新宿線「花小金井」駅バス9分・西武池袋線「東久留米」駅バス15分
【販売価格】
4,980万円
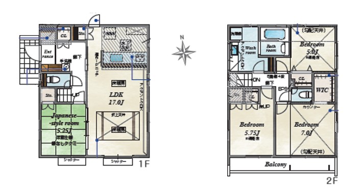
【間取り・プラン】◎4LDK+駐車スペース2台 ◎リビング約17帖+洋風タタミ使用のお部屋 ◎2階にお風呂と洗面所があるので、お洗濯物を干すのも楽々です♪
【おすすめポイント】◎玄関入ってすぐに洗面台あり ◎全居室収納+土間収納+WIC+床暖房◎洗面台はゆったりオープンサニタリー♪
【敷地・建物面積】土地:121.15㎡(36.64坪)/建物:96.38㎡(29.14坪)
★現地案内・資料請求・住宅ローン相談などお気軽にどうぞ★
【お問い合わせ】
| トーキョーリビング株式会社 📞TEL:042-439-5552 ✉メール narita@tokyoliving.co.jp |




























