🏡 武蔵村山市残堀1丁目 売地(建築条件なし)
ゆとりある約50坪の整形地。
第一種低層住居専用地域の穏やかな住宅街に位置し、
自由設計で理想のマイホームを実現できます。
建築条件はございませんので、
お好きなハウスメーカー・工務店で建築可能です。
💬 ポイント
-
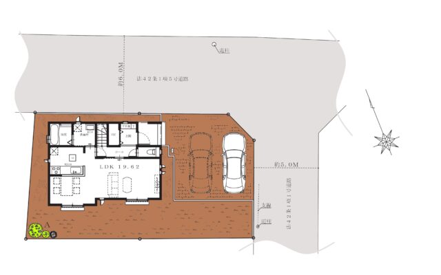
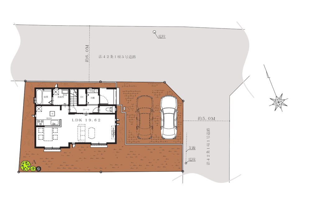
敷地面積:約166㎡(約50坪)
-
建築条件なし(お好きなプランで建築可)
-
前面道路約5m、駐車2台可のゆとりある区画
-
第一種低層住居専用地域/容積率80%・建ぺい率40%
-
都市ガス・本下水・公営水道
-
武蔵村山市内でも落ち着いた住環境
💰 販売形態
-
(建売参考価格:3,790万円)







