
期間中ご契約者様に快適生活を応援する30万円相当の商品を3つのコースからお選びいただきプレゼントします!
土地付建物売買契約、注文住宅及び建築条件付物件の建物請負契約に限ります。
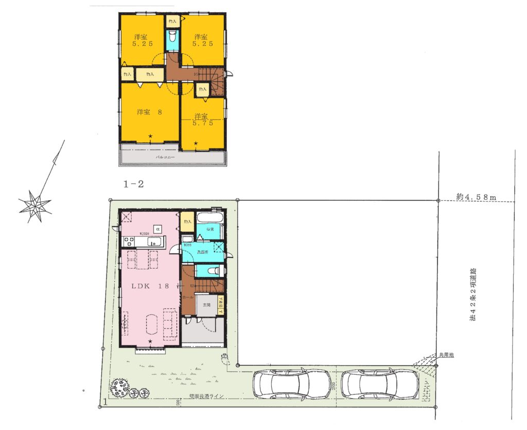
詳しくは営業担当までお問合せください。
※契約日7月1日~8月31日限る
住宅性能表示制度
1)構造の安定に関すること

住宅性能表示 【耐震性能】
地震や風の力が加わった時の建物全体の倒壊・損傷のしにくさを評価します。
・耐震等級(構造躯体の倒壊等防止) 等級3 (最高等級) 取得
・耐震等級(構造躯体の損傷防止) 等級3 (最高等級) 取得
・耐風等級(構造躯体の倒壊等防止及び損傷防止) 等級2 (最高等級) 取得
・地盤又は杭の許容支持力等及び設定方法
(地盤又は杭の見込んでいる支持力の大きさとその設定方法を記入)
・基礎の構造方法及び形式等(基礎の構造及び形式を記入)
2)火災時の安全に関すること

住宅性能表示 【火災時の安全に関すること】
火災の早期発見のしやすさや建物の燃えにくさを評価します。
・感知警報装置設置等級(自住戸火災時)
・耐火等級 ・延焼の恐れのある部分(開口部)
・延焼の恐れのある部分(開口部以外)
3)劣化の軽減に関すること

住宅性能表示 【劣化の軽減に関すること】
建物の劣化(木材の腐朽等)に対する対策を評価します。
・劣化対策等級(構造躯体等) 等級3 (最高等級) 取得
4)維持管理への配慮に関すること

住宅性能表示 【維持管理への配慮に関すること】
給湯給排水管とガス管の日常における維持管理のしやすさを評価します。
・維持管理対策等級 等級3 (最高等級) 取得
5)温熱環境に関すること

住宅性能表示 【省エネ性能】
住宅の断熱化による冷暖房時のエネルギーの程度を評価します。
・省エネルギー対策等級
6)空気環境に関すること

住宅性能表示 【空気環境に関すること】
内装仕上げ材、下地材のホルムアルデヒド放散量の少なさ及び換気装置の有無を評価します。
・ホルムアルデヒド対策等級(内装及び天井裏等) 等級3 (最高等級) 取得
7)光・視環境に関すること

住宅性能表示 【光・視環境に関すること】
日照や採光を得る開口部面積の多さ及び方位ごとの割合の分布(比率)を評価します。
・単純開口部
・方位別開口比 >表示方法(居室の開口面積及び方位ごとの比率で表示)
8)音環境に関すること(選択項目)

住宅性能表示 【音環境に関すること】
外部からの騒音の遮断程度として、居室のサッシ等の遮音性能を評価します。
・過損失等級(外壁開口部)
・耐火等級 >表示方法(北・東・南・西の方位ごとに表示)
9)高齢者等への配慮に関すること

住宅性能表示 【バリアフリー性能】
住宅内の移動の安全性及び介助の容易性、すなわちバリアフリーの程度を評価します。
・高齢者等配慮対策等級(専用部分)
10)防犯に関すること

住宅性能表示 【防犯に関すること】
住宅の開口部を外部からの接近のしやすさに応じてグループ化し、
その上で各グループに属する全ての開口部について、
防犯建物部品を使用しているか否か、階ごとに表示します。
かんたん変身住宅スケルトンインフィル

■ スケルトン : 耐久性を高めた建物の構造体のこと
■ インフィル : 間取りや設備など内装のことこの両者を明確に分離すれば、ライフステージや生活スタイルの変化にインフィルの改造で対応できるため、スケルトン自体は長期的に有効活用することが可能になります。
ライフスタイルに合わせて
新築する際に1階にリビング、寝室や子供部屋は2階に設計した場合を例に考えてみましょう。その数年後、お子様の独立や結婚、住み手の高齢化、また、2世帯での同居や孫の誕生などによって暮らしは変化していきます。そこで、居室の間取りを変更したり、広いリビングに再設計することで、住まいとのお付き合いもより長く、より快適になっていくはずです。人が住まいを選び、変えるのではなく、住まいが暮らしに合わせ変化する。SI住宅なら、高い柔軟性で対応することが可能です。

※壁は可動間仕切ではありません。
※壁配置を変更する際には、床・壁・天井等の工事が必要となり、これに伴う費用が発生します。
※本例は1例を示すものであり、間取変更の容易性は、実際の建物により異なります。
ローンのはなし


また、弊社では外部のFPと提携を結び
お客様に合ったライフプランニングのご提案もおこなっております。
“ローンが通っても本当に組んでしまって大丈夫なのか”
お子様がいらっしゃるご家庭では将来大学まで通う事を視野に入れた
将来の人生設計のチャートを可視化しお考え頂く場も設けております。
ぜひお気軽にご相談下さいませ。




























