~お得に購入!諸費用応援キャンペーン対象物件~

●弊社管理物件!
●全3棟の新築分譲!
●全室南向き!
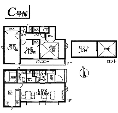
●全棟ロフト付きの3LDK!
●建物はZEH水準の省エネ住宅!
●前面道路は車の通りが少ない約4m~5m道路!
●深大寺公園も近く、子育てに最適な緑多い自然豊かな住環境!
●建物は地震に強い耐震等級3取得!
●住宅性能評価6項目で最高等級取得!
●建物完成いたしました!
●室内のご見学も随時承っております。
※室内の掲載写真はA号棟となります
| 築年月 | 2025/02 | 新築/中古 | |
|---|---|---|---|
| 面積 | 76.58m2~76.8m² | 計測方式 | |
| バルコニー | 向き | ||
| 建物階数 | 地上2階 | 部屋階数 | |
| 部屋/区画番号 | 総戸/区画数 | 3 | |
| 建物構造 | 木造 | ||
| 間取内容 |
ロフト付き |
||
| 駐車場 | 取引態様 | 仲介 | |
| 引渡/入居時期 | 即時 | 現況 | 空家 |
| 地目 | 宅地 | 用途地域 | 第一種低層住居専用 |
| 都市計画 | 市街化区域 | 地勢 | 平坦 |
| 土地面積 | 95.91m2~96.11m² | 土地面積計測方式 | 公簿 |
| 建ぺい率 | 40% | 容積率 | 80% |
| 土地権利 | 所有権 | 接道状況 | 一方 |
| 接道方向1 | 東 | 接道間口1 | |
| 接道種別1 | 公道 | 接道幅員1 | 4~5m |
| 国土法届出 | 不要 | ||
| 周辺環境 |
調布市立深大寺小学校:徒歩17分 調布市立調布中学校:徒歩15分 |
||
| 設備・条件 | 三口コンロ カウンターキッチン 食器洗い乾燥機 給湯 追い焚き 洗髪洗面化粧台 浴室乾燥機 温水洗浄便座 床下収納 ロフト付き TVドアホン 都市ガス 公営水道 排水下水 住宅性能評価書 A号棟:申込 B号棟:5,490万円 C号棟:5,590万円 |
||
| 物件番号 | |||
| 特記事項 | 景観法 | ||

●弊社管理物件!
●全3棟の新築分譲!
●全室南向き!
●全棟ロフト付きの3LDK!
●建物はZEH水準の省エネ住宅!
●前面道路は車の通りが少ない約4m~5m道路!
●深大寺公園も近く、子育てに最適な緑多い自然豊かな住環境!
●建物は地震に強い耐震等級3取得!
●住宅性能評価6項目で最高等級取得!
●建物完成いたしました!
●室内のご見学も随時承っております。
※室内の掲載写真はA号棟となります